加賀市S様 平屋リフォーム
~移住~40代夫婦の家づくり物語


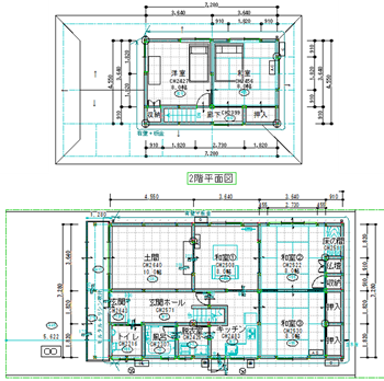
リフォーム前![]() |
リフォーム後![]() |
リフォーム前のお施主様の悩み・ご要望
- 大型車両が通行したときに家が揺れる
- 防犯面や水害が心配
- 他県から移住し、加賀市に永住できるようにしたい
- 薪ストーブを設置したい
施工概要
- 工事面積:93㎡
- 築年数:39年
- 構造:在来工法 木造1階建て

玄関・土間
リフォーム前![]() ![]() |
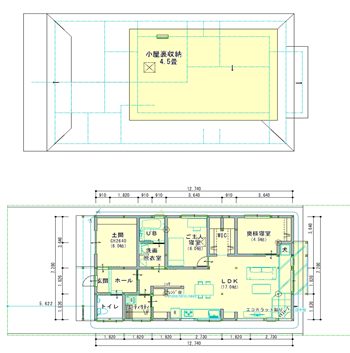
リフォーム後![]() ![]() 玄関から農作業に必要な物を置く土間スペースへ直接行けるようにした ![]() 玄関ホールをコンパクトにし、部屋を広々使えるように |
LDK
リフォーム前![]() ![]() |
リフォーム後![]() ![]() LDKから各部屋にアクセスできる ![]() 愛犬のスペース確保 |
解決方法・工夫点
- 耐震・防犯・避難経路の確保をした。
- 愛犬と室内で暮らすことをふまえて、調湿機能があるエコカラットをご提案。
- 全窓防犯用ガラスとした。
お施主様の感想
リモデルしてスマイルになったこと
仕事もプライベートも楽しめる家になりました。収納が充実し、念願の薪ストーブ、愛犬のスペース確保など快適な住空間となり、大変満足しています。




















































