羽咋市 K様 平屋リフォーム
住まいの在り方~明治から令和へ~


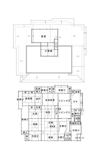
リフォーム前![]() |
リフォーム後![]() |
リフォーム前のお施主様の悩み・ご要望
- 子供も巣立ち、一人での生活を送る上では家が大きすぎる。
- 将来のことも考えコンパクトで暖かく生活できるようにしたい。

外観
リフォーム前![]() |
リフォーム後![]() 廊下はデッキともつながり開放的に 手摺とスロープも完備 ![]() 玄関位置も変え、大きくイメージチェンジ |
玄関・ホール
リフォーム前![]() |
リフォーム後![]() SCが隣接する玄関 ![]() 玄関からリビングへの廊下 |
LDK・仏間
リフォーム前![]() ![]() |
リフォーム後![]() 窓から見える自然とも調和する木の温もりを感じる ![]() 大事にしている庭を愛でられるよう大きな窓を採用
タイルの腰壁×無垢の床材
LDKからつながる仏間 |
水回り
リフォーム前![]() |
リフォーム後![]() 水廻横にサンルーム ![]() 手摺設置、車椅子にも対応 |
解決方法・工夫点
- 1階2階で89坪ある家を減築して平屋でコンパクトに生活できるようにご提案した。
- リフォーム支援事業補助事業を活用し耐震補強を行った。
- 平屋にして、屋根材も軽量化することで、Iw値を0.10から1.19に高めた。
- 家全体を断熱施工を行いUa値を高めた。またスイッチ部分からの冷気を防ぐために断熱カバーを施工した。
お施主様の感想
リモデルしてスマイルになったこと
リフォームでもここまでガラッと変えることができました。暗かった室内も光が入り日中でも電気をつけずに生活ができるようになりました。子供が戻ってきたときにも受け継げるようになりよかったです。
























































